Sign up to get new listings emailed daily! JOIN SIGN IN
Jennifer D. Jennings
REALTOR®
Facebook Icon Instagram Icon 
Refine Search

011 Pine Street, Taylor, MI 48180

$330,000
  • 011 Pine Street, Taylor, MI 48180 Main Photo

2 Total Photos [Click to View All]

Active
BEDS3 BATHS1 full SQUARE FEET1,530 MLS#20261011465
STATUSActive PROPERTY TYPEResidential - Single Family SUBDIVISIONPaterson Telreka Sub SCHOOLTaylor

Property Description

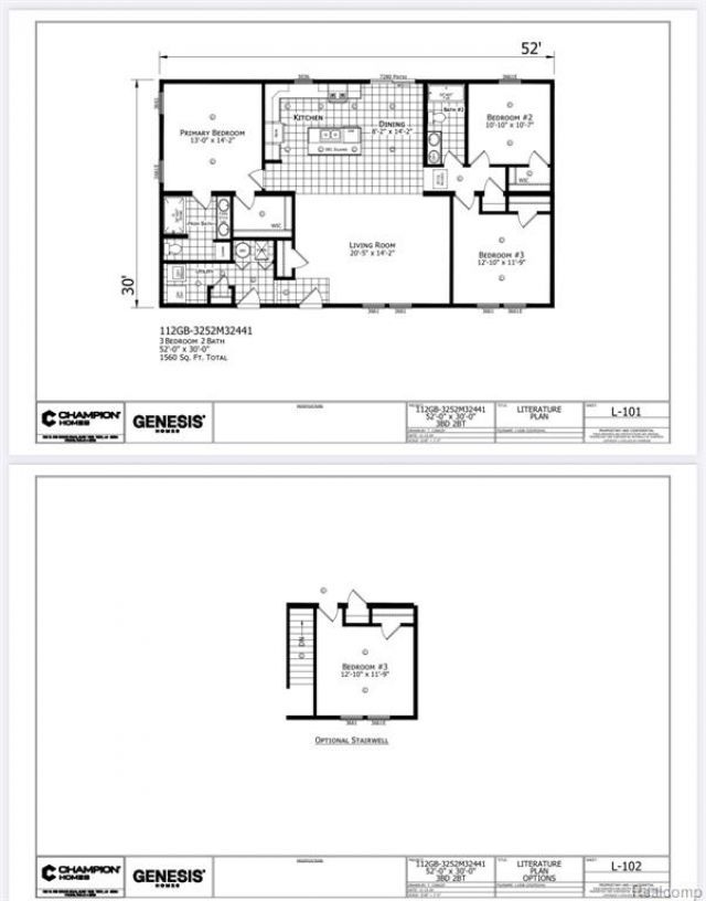
Beautiful new construction TO BE BUILT with plenty of up upgrades possible. Personalize your finishes—including flooring, paint and more to create your dream home. This is a 3-bedroom, 2-bath home with a modern and spacious layout. The large kitchen features granite countertops, premium cabinets and a large island. The primary suite includes dual sinks, a large shower, and a walk- in closet. Enjoy a full basement with 9-10 ft ceilings. The home also offers an attached 3-car garage and sits on a beautiful lot.

011 Pine Street | MLS# 20261011465

This single family home located at 011 Pine Street, Taylor, MI 48180 is currently listed for sale with an asking price of $330,000. This property was built in 2026 and has 3 bedrooms and 1 full baths with 1530 sq. ft. Pine Street is located in the Paterson Telreka Sub subdivision within the Taylor school district. Search Paterson Telreka Sub real estate on www.jdjrealtor.com today.

Property Features

Property Type: Residential - Single Family
Basement: Unfinished
Cooling: Central Air
Fuel Type: Natural Gas
Garage: 2 car attached
Heating: Forced Air
Home Style: Ranch
Lot Size: 0.47 Acres
Year Built: 2026

Feature Descriptions

Architecture: Ranch
Days on Site: 32
Exterior: Vinyl
Foundation: Basement
Frontage Feet: 75
Garage/Parking: Attached
Lot Dimensions: 0.47 Acre(s)
Parking Notes: Attached
Road Frontage: Paved
Summer Tax: $641.3600
Winter Tax: $173.9500

Local Schools

School District: Taylor

Listed By / Shown By

Listed By

Agency Name: Tailored Real Estate Solutions
Agency Phone: (248) 418-0624

Shown By

Agent Name: Jennifer D. Jennings
Agent Phone: (989) 295-4680
Agency Title: Key Realty

IDX logo

Estimate Your Payment

Estimated Payment

$ 1,942.18 per month $1,845.93 Principal & Interest $0.00 Property Tax (data not provided by mls) $96.25 Homeowner's Insurance

Change Payment Information

%
years/fixed
yearly
yearly (est.)
(Payments are an estimate and may vary by lender)
Disclaimer: All information deemed reliable but not guaranteed. All properties are subject to prior sale, change or withdrawal. Neither listing broker(s) or information provider(s) shall be responsible for any typographical errors, misinformation, misprints and shall be held totally harmless. Listing(s) information is provided for consumers personal, non-commercial use and may not be used for any purpose other than to identify prospective properties consumers may be interested in purchasing. Information on this site was last updated 04/01/2026. The listing information on this page last changed on 04/01/2026. The data relating to real estate for sale on this website comes in part from the Internet Data Exchange program of Delta Media Group MLS (last updated Wed 04/01/2026 3:15:42 AM EST) or MichRic (Michigan Regional Information Center) (last updated Tue 03/31/2026 11:17:32 PM EST) or Metrolist - RECOLORADO by MLSGRID (last updated Tue 03/31/2026 11:34:27 PM EST) or NIRA MLS (last updated Tue 03/31/2026 6:18:31 AM EST) or RealComp MLS (last updated Wed 04/01/2026 12:45:47 AM EST) or Dayton MLS (last updated Tue 03/31/2026 11:46:34 PM EST) or NORIS MLS (last updated Tue 03/31/2026 11:14:18 PM EST) or IRES MLS (last updated Wed 04/01/2026 12:17:02 AM EST) or Colorado Real Estate Network IDX (last updated Tue 03/31/2026 7:05:34 PM EST) or CBRMLS (last updated Wed 04/01/2026 12:44:28 AM EST) or Multiple Listing Service of Greater Cincinnati (last updated Tue 03/31/2026 3:24:27 PM EST) or Terrehaute MLS (last updated Wed 04/01/2026 2:56:16 AM EST) or Pikes Peak REALTORR Services Corp (last updated Wed 04/01/2026 12:45:12 AM EST) or Stellar MLS (last updated Wed 04/01/2026 1:58:51 AM EST) or NKY MLS (last updated Tue 03/31/2026 11:28:23 PM EST) or Wrist MLS (last updated Tue 03/31/2026 11:24:16 PM EST) or Firelands MLS (last updated Tue 03/31/2026 11:11:25 PM EST) or LCAR MLS (last updated Tue 03/31/2026 10:50:12 AM EST) or West Central MLS (last updated Tue 03/31/2026 9:51:05 PM EST) or Fort Myers (last updated Tue 03/31/2026 11:04:34 PM EST) or Aspen/Glenwood Springs MLS (last updated Tue 03/31/2026 9:29:41 PM EST) or Northern Nevada Regional MLS (last updated Wed 04/01/2026 1:16:43 AM EST) or MLS NOW (last updated Wed 04/01/2026 12:17:29 AM EST) or Northern Great Lakes Association of Realtors (last updated Wed 04/01/2026 12:19:12 AM EST) or Mansfield MLS (last updated Tue 03/31/2026 11:47:13 PM EST) or Metropolitan Indianapolis Board of Realtors (last updated Wed 04/01/2026 1:06:13 AM EST) or Grand Junction MLS (last updated Tue 03/31/2026 11:37:23 PM EST) or Knox County MLS (last updated Tue 03/31/2026 11:08:38 PM EST) or IRMLS (last updated Tue 03/31/2026 11:12:25 PM EST) or Pueblo MLS (last updated Wed 04/01/2026 12:43:42 AM EST) or Upper Peninsula MLS (last updated Tue 03/31/2026 11:10:11 PM EST) or Greater Lansing MLS (last updated Tue 03/31/2026 10:37:48 PM EST) or SEBAR MLS (last updated Tue 03/31/2026 11:39:21 PM EST) or Water Wonderland MLS (last updated Tue 03/31/2026 10:52:45 PM EST) or Eastern Upper Peninsula MLS (last updated Tue 03/31/2026 11:59:10 PM EST) or Scioto Valley MLS (last updated Tue 03/31/2026 10:02:55 PM EST) or Northern Michigan MLS (last updated Tue 03/31/2026 9:33:49 PM EST). Real estate listings held by brokerage firms other than Key Realty may be marked with the Internet Data Exchange logo and detailed information about those properties will include the name of the listing broker(s) when required by the MLS. All rights reserved.
IDX provided courtesy of Realcomp II Ltd.
©2021 Realcomp II Ltd. Shareholders

Privacy Policy / DMCA Notice / ADA Accessibility

Agency License Information: 1-877-539-7589 | Ohio Lic# REC.2010002888 6800 W Central Ave #B, Toledo, OH 43617 | Michigan Lic# 6505366134 8040 Summerfield Rd, Lambertville, MI 48144 | Indiana Lic# RC52400106 3029 W Smith Valley Rd #211, Greenwood, IN 46142 | West Virginia LIC# 010306 Erin Rickman, Broker. 410 Market St #3, Parkersburg, WV, 26101 | Colorado LIC# EC.100108419 603 Rood Ave, Grand Junction, CO 81501 | Nevada LIC# B.0146350.LLC 9190 Double Diamond Pwky, Reno, NV 89521 | Florida LIC# CQ1073507 16638 Mooner Plank Cir, Wimauma, FL 33598



Agent License Information: 6501402331 Brokerage/Company License Number: MI-65-05366134

Login to My Homefinder

Pixel